Xtralite and Vitral are now a part of VELUX Commercial, and we are delighted to welcome you to our new website. Here, you will find our complete portfolio of daylight solutions and services for industrial, commercial and public buildings.
{{curreentCase.CaseSelected.Header}}

Development of energy-efficient social housing with plenty of natural light

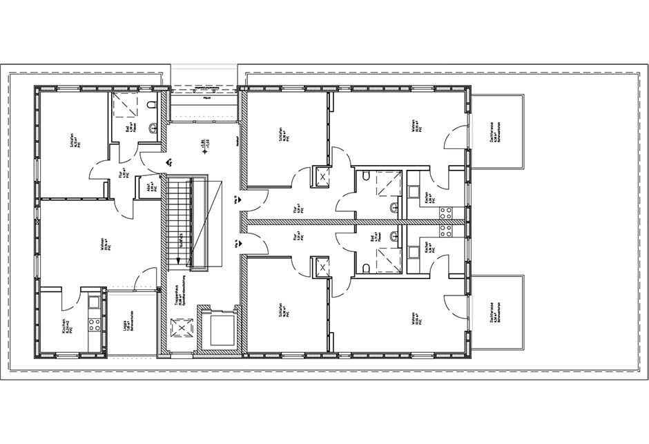
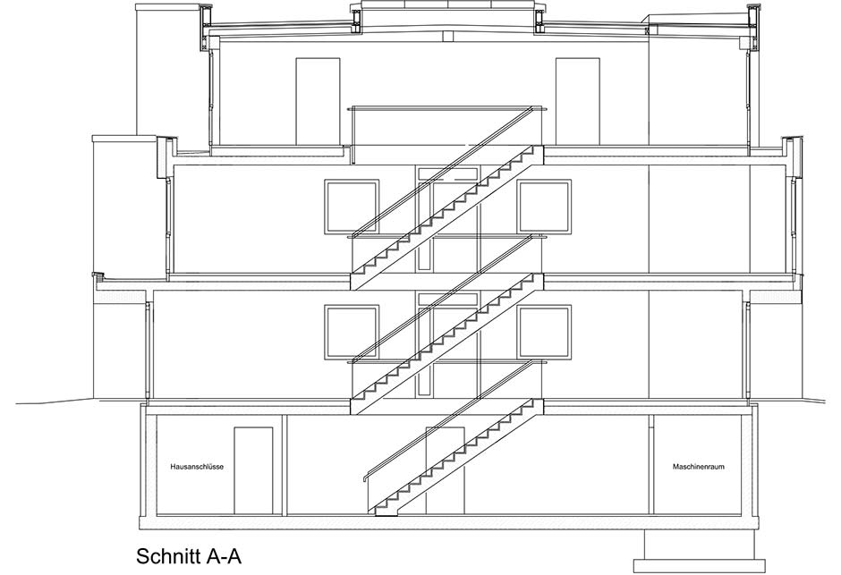
45, social housing units were built by HGB mbH, of which 15 are designed for the elderly. The complex is made up of three cubic, continuous two-storey buildings with a staggered floor and partial basement. The entrances and stairways are positioned back from the street and the garden to respect their other uses and in this way clearly structure the residential buildings.

The material concept is shaped by the guiding principle of using appropriate and timeless materials to create a durable building that is inexpensive to maintain and reflects the image of a modern and sustainable housing association. The building is designed to save energy according to the current Energy Saving Ordinance (KfW 70). With its relatively small envelope surface, the compact structures offer good prerequisites for this. Generous window areas ensure maximum use of daylight. The stairwells in particular were planned to be flooded with light.

Resume


{{property.PropertyName}}

{{pValue.PropertyValue}}

Architectural drawings

Products used in project

3 x Longlight

Longlight 5-30°

A mono-pitched solution ideal for flat roofs

Illustration of Longlight solution Read more

Number of modules: 12

Longlight 5-30°

A mono-pitched solution ideal for flat roofs

Illustration of Longlight solution Read more

Heinz-Rainer Eichhorst

Architect

With the VELUX Modular Skylights we achieved light-flooded stairwells with a clear design.

Modular system icon

The Modular System

Learn about modularity, key benefits and our co-creation with Foster + Partners.

Explore the Modular System
Project support help for modular skylights - icon

We are here to help

Our skylight specialists are ready to guide you through the entire process from design to installation.

Get project support

Other case studies